465 e/ 17 y 19

U$S 200.000.-

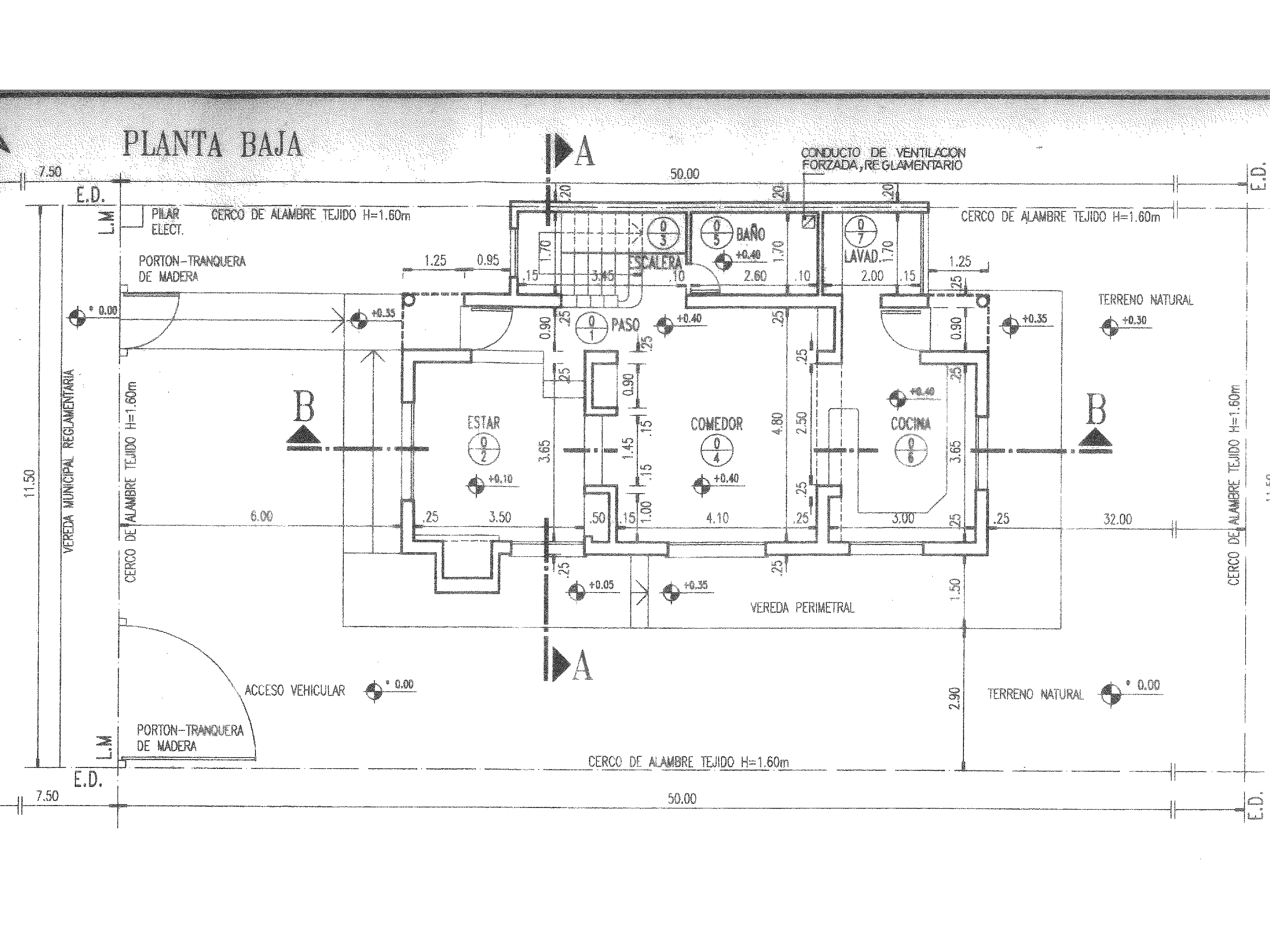
Descripción

Casa desarrollada en dos plantas de tres dormitorios.

En planta baja living en desnivel con hogar, estar-comedor, cocina integrada, lavadero separado, baño completo, entrada libre para autos, parrilla y parque.

En planta alta, tres dormitorios, baño completo con ante baño.

Posee 170 m2 cub, lote de 11,50 x 50 mts.

Los dormitorios poseen placard, pisos plastificados y dos de ellos cuentan con estufas.

La vivienda ofrece portón automático y cámaras en cuanto a seguridad.

Excelente entorno.

Oficinas Comerciales

Manuel B. Gonnet - La Plata
Calle 28 Nro. 4097 esq. 491 (1897)
+54 (221) 4710026 (Líneas Rotativas)
+54 (221) 4714892 (Líneas Rotativas)
+54 (221) 4365851

E-mails

camiglia@hotmail.com
ventas@camiglia.com.ar
alquileres@camiglia.com.ar

Horarios

Lunes a Viernes
10:00 a 13.00 hs.