489 e/ 133 y 134

U$S 237.000.-

Descripción

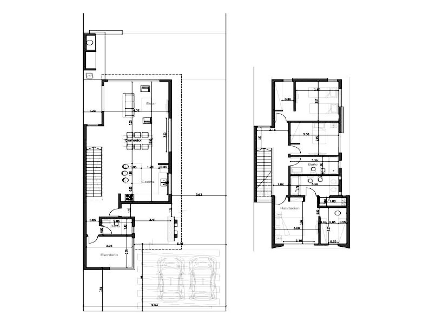
Casa en dos plantas de tres dormitorios.

En planta baja cuenta con amplio living comedor con cocina integrada e isla. Escritorio y baño completo. Galería con pérgola, parrilla, lavadero en gabinete, pileta y parque libre.

En planta alta, posee tres dormitorios, uno en suite con hidromasaje y box de ducha, más vestidor completo. Un dormitorio con vestidor y otro con placard. Baño completo.

Entrada para dos vehículos.

Calefacción por radiadores con caldera dual. Radiadores instalados en todos los ambientes. Aberturas de aluminio con DVH. Pisos de porcelanato de 1ra calidad. Pileta con bomba y sistema de filtrado completo.

Lote de 9,53 x 36,5 mts, con 165 m2 cubiertos.