137 e/ 495 y 501

U$S 105.000.-

Descripción

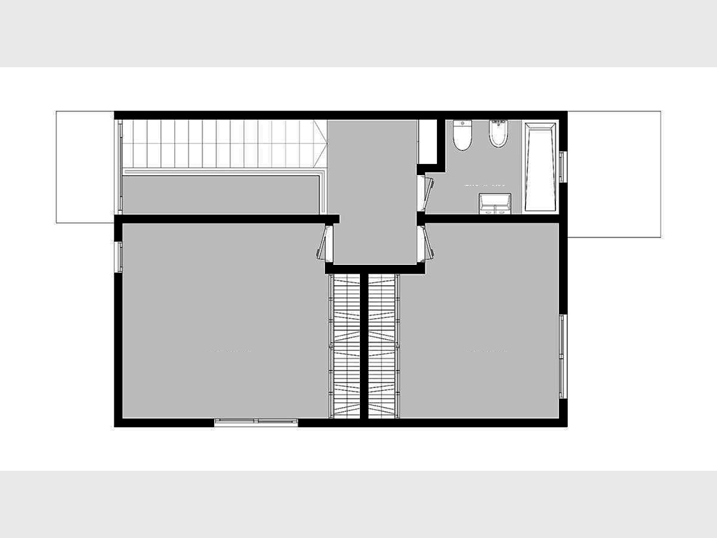
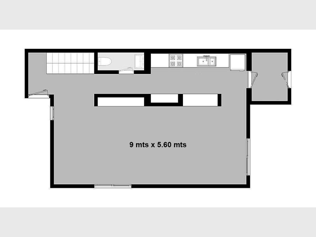
Dúplex en complejo de dos dormitorios, estar-comedor, cocina semi-separada, toilette, baño completo, lavadero separado, galería con parrilla, entrada para autos y patio con verde privado. Lote de 10 x 14, unidad nro 1, de 4, con ingreso único. Sin expensas.

Cuenta con pisos de porcelanato en planta baja, cocina amueblada y barra desayunadora, aberturas de aluminio. Pisos cerámicos y placard en ambos dormitorios. Rejas en aberturas y portón, Servicios de luz, agua, gas envasado, no posee cloacas. Actualmente desocupado.